- For Sale
- For Lease
- Recent Transactions
- Our Services
- Join Us
- National Auction Event
- Industrial Solutions
- About Us
- Sign In or Register
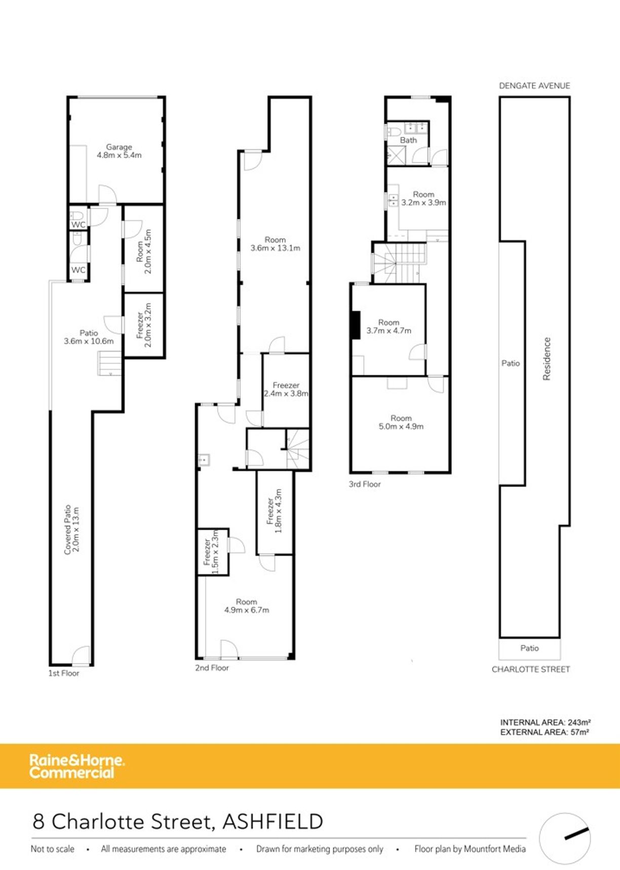
8 Charlotte Street, Ashfield, NSW 2131
Floor Area:
243sqm
Land Area:
248sqm
For Sale
Expression of Interest - Contact Agent
Ashfield CBD Freehold| Prime Retail & Office/Residence Opportunity
Available to the market via Expressions of Interest is 8 Charlotte Street, Ashfield. A rare opportunity to acquire a two-level freehold retail building with a substantial food & beverage fit out in place, offering vacant possession perfect for owner occupiers.
Located just 50m* from Ashfield Railway Station and directly opposite Club Ashfield RSL, the property benefits from exceptional pedestrian exposure within a well-established food & retail precinct.
Ashfield is home to over 23,000^ residents with a median weekly household income of $1,888^, above the national average. With 55%^ of residents born overseas and strong commuter flow via its major transport interchange just 9km* from the Sydney CBD, the precinct underpins consistent and diverse retail demand.
The premises has been fitted with multiple cool rooms, food preparation areas, food-grade wall and floor finishes, extensive plumbing services and an in-ground grease trap - representing significant replacement value and materially reducing fit-out costs, approval risk and time to trade for incoming operators.
Property Highlights:
• 248 sqm* landholding and 243 sqm* total building area with additional lock up garage.
• E1 Local Centre zoning with 2:1 FSR
• Prominent retail frontage in the heart of Ashfield CBD
• Fully fitted food premises, including in-ground grease trap
• Multiple cool rooms and food preparation areas
• Rear lane access & roller door lock up garage.
• Male & female amenities located on ground floor
• Flexible first-floor layout with kitchen and bathroom, suitable for home occupation, office, storage, or additional seating (STCA)
• Strong underlying land value in a tightly held precinct with future uplift potential under the Transport Oriented Development framework
• Suitable for owner-occupiers, investors, or food and hospitality operators
This represents a strategic Inner West freehold acquisition with substantial existing improvements and long-term flexibility.
All offers are required to be submitted in writing via the exclusive agents by 4pm Thursday 2nd April 2026.
For further information and to Contact Sean Czuczman on 0414 555 449 or Duarte Figueira 0417 277 177 for an inspection
*Approximate
^https://profile.id.com.au/inner-west/about?WebID=330

Sean Czuczman
Commercial Sales & Leasing Executive

Duarte Figueira
Director
Got a property to sell? Contact us for a free Request Appraisal
Property Info:
- Property ID: L39598598
- Property Type:Retail
- Building / Floor Area:243 sqm
- Land Area:248 sqm
- Car Spaces:2
Recently Listed
Recently Sold

