- For Sale
- For Lease
- Recent Transactions
- Our Services
- Join Us
- National Auction Event
- Industrial Solutions
- About Us
- Sign In or Register
- Home
- Recent Transactions - Leased
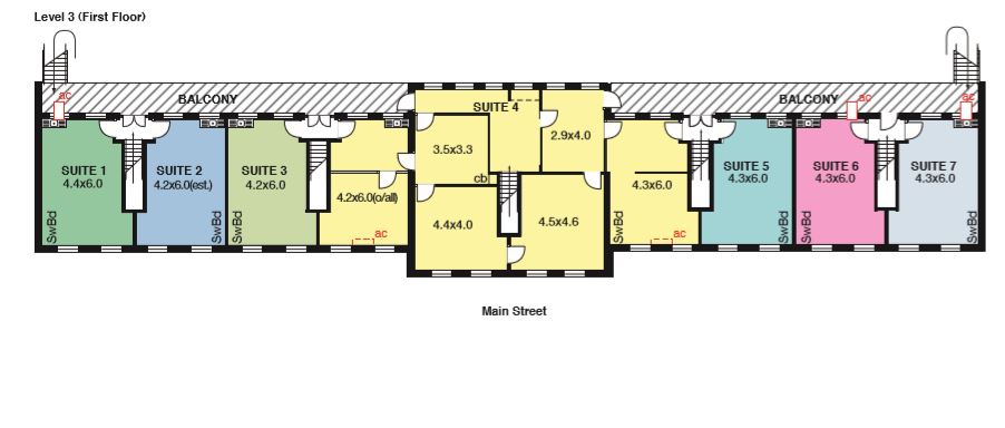
- Suite 4, 223 Main Road, BLACKWOOD, SA 5051
Suite 4, 223 Main Road, Blackwood, SA 5051
Floor Area:
126sqm
Leased
$16,000

David Burford
Sales and Leasing
Got a property to sell? Contact us for a free Request Appraisal
Property Info:
- Property ID: L1216904
- Property Type:Offices
- Building / Floor Area:126 sqm
Recently Listed
Recently Leased
