- For Sale
- For Lease
- Recent Transactions
- Our Services
- Join Us
- National Auction Event
- Industrial Solutions
- About Us
- Sign In or Register
Shop 4/25-27 Hay Street, Colonial Arcade, Port Macquarie, NSW 2444
Floor Area:
39sqm
Land Area:
39sqm
For Sale
$220,000 No GST Applies
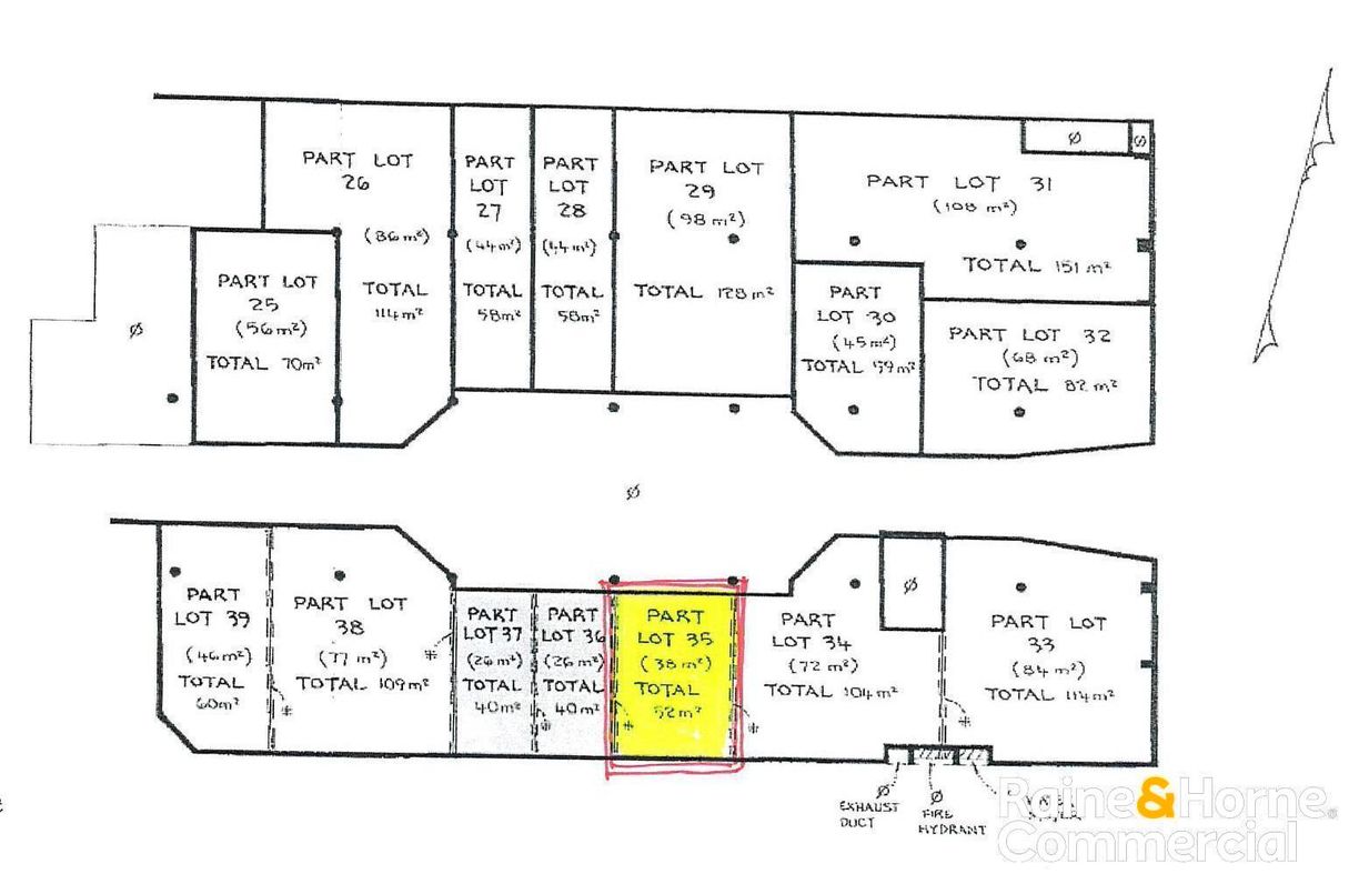
Investors Opportunity - CBD Colonial Arcade Shopfront
* Located only meters from Port's premier shopping centre, "Port Central" 48 specialty shops and excellent parking
* CBD location - Colonial Arcade shopfront
* Area of 39 sqm approx
* Fully fitted with partitioning for small office, kitchenette, air conditioning, flooring, hot water and feature lighting
* Includes one (1) basement security car space - easy access and full size
* Recently replaced air conditioning unit, brand new 6.5 kiloWatt AC unit with 6 year warranty
* Currently leased, Tenancy of 1 year initial term that commenced 1 August 2025 and expiring 31 July 2026 with a further One (1) year option
* Tenant's annual rental of $20,000 PA No GST, current vendor not registered
* Outgoings payable by Lessor - Council Rates $2,302.95 PA and Strata Levies $4,444 PA, tenant pays water and a/c servicing
For further information Ph 02 6584 0544
Shop 1, 136 William Street, Port Macquarie

Luke Horton
Business Owner - Sales, Leasing & Management
Got a property to sell? Contact us for a free Request Appraisal
Property Info:
- Property ID: L1183720
- Property Type:Retail
- Building / Floor Area:39 sqm
- Land Area:39 sqm
- Car Spaces:1
Recently Listed
Recently Sold
