Penrith
- For Sale
- For Lease
- Recent Transactions
- About Us
- Sign In or Register
457 Great Western Highway, Faulconbridge, NSW 2776
Floor Area:
206sqm
For Lease
Contact Agent
Prime First Floor Commercial Opportunity With Maximum Exposure | Faulconbridge
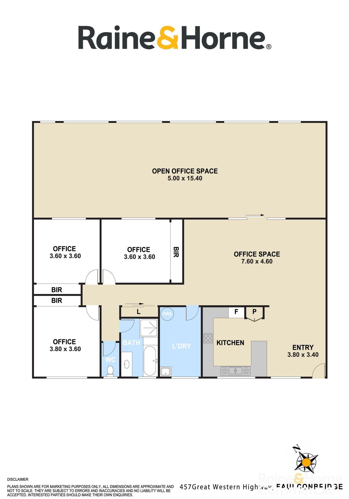
Positioned in the heart of Falconbridge along the Great Western Highway, this spacious 206sqm* commercial property presents an excellent opportunity for businesses seeking a highly visible and well-located premises. Offering a versatile layout with a combination of private offices and open-plan workspace, the property provides a functional environment suitable for a range of commercial or professional uses.
The property benefits from prominent highway frontage, delivering excellent exposure for signage and passing traffic while providing a comfortable and well-appointed workspace.
Key Highlights:
• 206sqm* total floor area
• Full kitchen with ample cupboard and bench space
• Bathroom with shower and bath facilities
• Expansive windows providing abundant natural light
• Excellent Great Western Highway frontage for signage and exposure
• Freshly presented interiors ready for immediate occupation
• Flexible layout suitable for a range of commercial uses
• Approximately 4.6km* from Faulconbridge train station
For further details or to arrange a private inspection, please contact the exclusive agent.
*All quoted measurements are approximate.

Ravi Kalsi
Sales & Leasing Executive
Got a property to sell? Contact us for a free Request Appraisal
Property Info:
- Property ID: L39554430
- Property Type:Offices
- Building / Floor Area:206 sqm
Recently Listed
Recently Leased

