Newcastle
R&H

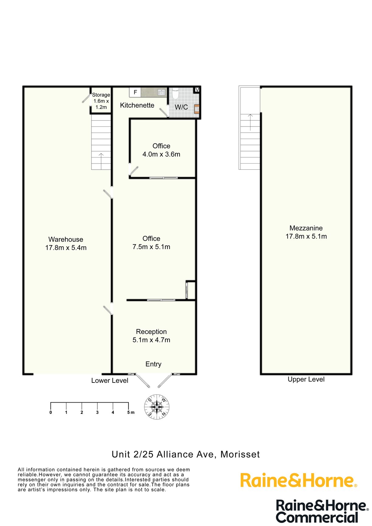
2/25 Alliance Avenue, Morisset, NSW 2264

  • Floor Area:
    291sqm
    Warehouse Area:
    97sqm
    Mezzanine Area:
    97sqm
    Office Area:
    97 sqm
  • garages2
    • Sold

      Sold for $660,000 on Aug 22, 2024

      FURTHER PRICE REDUCED - OWNER OCCUPY or INVEST SHOWROOM-WARHOUSE

      OWNER SAYS SELL - FURTHER PRICE REDUCED
      On offer is this spacious industrial/warehouse property located at 2/25 Alliance Avenue in Morisset. This well-maintained building offers a generous 291sqm of space, perfect for a variety of industrial or warehouse uses.
      • 291m2 (approx) including mezzanine
      • Front entrance showroom
      • Spacious open plan air-conditioned office
      • Quality amenities & kitchen area
      • High Clearance 4.5m roller door
      • Warehouse Storage
      • Mezzanine storage or easily transformed into office area
      • Potential Rental income $38,000 net + GST & Out Goings
      Constructed of dado metal clad and concrete finish, this property boasts modern façade and features including front entry showroom, open plan office, kitchen, warehouse and large mezzanine storage or convert to offices. The open floor plan provides plenty of flexibility for customisation to suit your needs.
      Conveniently located in Morisset, this property offers easy access to major roads and highways for seamless transportation of goods and services.
      Don't miss out on this fantastic opportunity to own a versatile industrial/warehouse property in a prime location. Contact us today for more information and to schedule a viewing. Price Upon Application.
      Disclaimer:
      The information contained in this advertisement is obtained from sources we believe to be reliable, however, we cannot guarantee its accuracy and completeness. We accept no responsibility and disclaim all liability in respect of any errors, inaccuracies, or misstatements contained herein. Interested parties should make their own inquiries to verify the information contained in this advertisement. The information provided in this advertisement is intended to act as a messenger only in passing on details. Any personal information provided to us during the course of the campaign will be kept on our database for follow-up and to market other opportunities, unless instructed in writing to the contrary.
      Share
      avatar Warren Plumb
      Warren Plumb
      Licensed Agent
      avatar Reece Harrison
      Reece Harrison
      Licensed Agent

      Got a property to sell? Contact us for a free Request Appraisal

      Property Info:
      • Property ID: L28007896
      • Property Type:Industrial/Warehouse
      • Building / Floor Area:291 sqm
      • Car Spaces:2
      Need help with your finance?

      Our Broker is always on your side, and we are proud to be helping Australians obtain finance that best suits their circumstances and allows them to realise their property dreams. Your broker will work on your behalf, not the banks, to ensure that you get the most competitive rate within a product best suited to your needs and we do it fast and for free.

      avatar
      Craig Betalli

      Mortgage Broker

      Provided By
      R&H
      Recently Listed
      For Sale
      Guide $700,000 to $750,000
      5/20 Templar Place, Bennetts Green, NSW 2290
      • Floor Area:
        214sqm
        Land Area:
        3994sqm
      • Car Spaces
        2
      For Sale
      Contact Agent
      1-2/69 Pendlebury, Cardiff, NSW 2285
      • Floor Area:
        535sqm
        Land Area:
        1032sqm
      For Sale
      Guide $749,000
      25 West Mall, Rutherford, NSW 2320
      • Floor Area:
        148sqm
      • Car Spaces
        1
      For Sale
      Guide $900,000 - $950,000
      26 & 26A Greenway Street, Wickham, NSW 2293
      • Floor Area:
        197sqm
        Land Area:
        153sqm
        Mezzanine Area:
        44sqm
      For Sale
      Contact agent
      7/22 Templar Pl, Bennetts Green, NSW 2290
      • Floor Area:
        232sqm
      For Sale
      Contact agent
      64/8 Murray Dwyer Cct, Mayfield West, NSW 2304
      • Floor Area:
        38sqm
      For Sale
      Guide $700,000 to $750,000
      5/20 Templar Place, Bennetts Green, NSW 2290
      • Floor Area:
        214sqm
        Land Area:
        3994sqm
      • Car Spaces
        2
      For Sale
      Contact Agent
      1-2/69 Pendlebury, Cardiff, NSW 2285
      • Floor Area:
        535sqm
        Land Area:
        1032sqm
      For Sale
      Guide $749,000
      25 West Mall, Rutherford, NSW 2320
      • Floor Area:
        148sqm
      • Car Spaces
        1
      For Sale
      Guide $900,000 - $950,000
      26 & 26A Greenway Street, Wickham, NSW 2293
      • Floor Area:
        197sqm
        Land Area:
        153sqm
        Mezzanine Area:
        44sqm
      For Sale
      Contact agent
      7/22 Templar Pl, Bennetts Green, NSW 2290
      • Floor Area:
        232sqm
      For Sale
      Contact agent
      64/8 Murray Dwyer Cct, Mayfield West, NSW 2304
      • Floor Area:
        38sqm
      Recently Sold
      Sold
      40-42 Tudor Street, Hamilton, NSW 2303
      • Floor Area:
        50sqm
        Land Area:
        350sqm
      • Car Spaces
        10
      Sold
      2/34 Metro Court, Gateshead, NSW 2290
      • Floor Area:
        422sqm
        Land Area:
        422sqm
      • Car Spaces
        4
      Sold
      Sold for $70,000
      626 Pacific Highway, Belmont, NSW 2280
      • Floor Area:
        186sqm
        Land Area:
        436sqm
      Sold
      Sold for $1,155,000
      5 Samdon Street, Hamilton, NSW 2303
      • Floor Area:
        175sqm
        Land Area:
        443sqm
        Office Area:
        11sqm
      • Car Spaces
        8
      Sold
      40-42 Tudor Street, Hamilton, NSW 2303
      • Floor Area:
        50sqm
        Land Area:
        350sqm
      • Car Spaces
        10
      Sold
      2/34 Metro Court, Gateshead, NSW 2290
      • Floor Area:
        422sqm
        Land Area:
        422sqm
      • Car Spaces
        4
      Sold
      Sold for $70,000
      626 Pacific Highway, Belmont, NSW 2280
      • Floor Area:
        186sqm
        Land Area:
        436sqm
      Sold
      Sold for $1,155,000
      5 Samdon Street, Hamilton, NSW 2303
      • Floor Area:
        175sqm
        Land Area:
        443sqm
        Office Area:
        11sqm
      • Car Spaces
        8