Newcastle
- For Sale
- For Lease
- Recent Transactions
- Residential
- About Us
- Sign In or Register
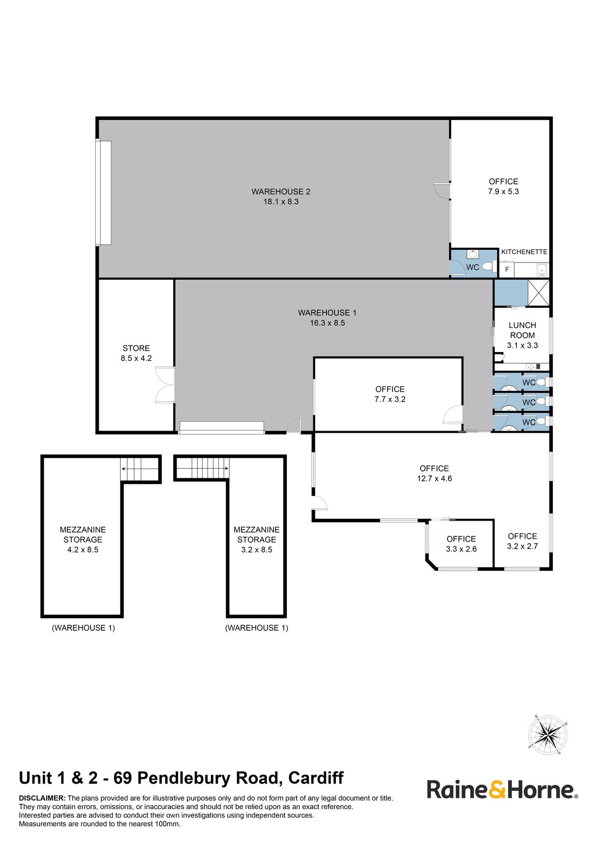
1-2/69 Pendlebury, Cardiff, NSW 2285
Floor Area:
535sqm
Warehouse Area:
535sqm
Land Area:
1032sqm
For Sale
EOI - Closes 5pm 26th Nov.
2 UNIT INDUSTRIAL INVESTMENT
An industrial investment offering long term leases with an unparalleled opportunity for investors!.
These 2 strata titled units of a combined approx. 535 sq/m with open yard areas sit on expansive lots of a combined approx. 930 sq/m, providing ample space for a variety of industrial applications.
With rare & substantial land areas on title, there's potential for future expansion or redevelopment, providing an excellent opportunity for long-term investment growth.
Unit 1 of approx. 335 sq/m is leased at approx. $55,640 Net & expires July 28' with a 1 year option.
Unit 2 is approx. 200 sq/m is leased at approx. $65,740 Net & expires June 34' with a 3 x 5 year option.
Total net rent of approx. $120,740 PA.
Recent renovations include,
Inter tenancy walls, office fit outs, external landscaping & lighting, carpark works, garage doors, boom gates, line marking, wheel stops, bollards, mirrors & signage, fencing, paving, decks, roofing & plumbing, wash bay, security system, intercom & CCTV.
Self managed strata titled units with no body corporate appointed.
Cardiff is rapidly developing, with a range of amenities and services nearby, including commercial & residential development, major supermarkets & retail outlets.
These 2 strata units in one line are a rare find in a competitive market & present an exciting opportunity for those looking to invest in a thriving industrial hub.
Expressions of Interest closing 5pm Wednesday 26th of November - Don't miss this unique opportunity to secure your commercial investment. Contact us today to arrange a private viewing.

Reece Harrison
Licensed Agent

Brad Wallace
Managing Director | Residential, Business & Commercial Sales
Got a property to sell? Contact us for a free Request Appraisal
Property Info:
- Property ID: L32059551
- Property Type:Industrial/Warehouse
- Building / Floor Area:535 sqm
- Land Area:1032 sqm
Need help with your finance?
Our Broker is always on your side, and we are proud to be helping Australians obtain finance that best suits their circumstances and allows them to realise their property dreams. Your broker will work on your behalf, not the banks, to ensure that you get the most competitive rate within a product best suited to your needs and we do it fast and for free.

Craig Betalli
Mortgage Broker
Provided By

Recently Listed
Recently Sold

