Raine & Horne Commercial and Business Sales
- For Sale
- For Lease
- Recent Transactions
- Business Sales
- Property Management
- About Us
- Sign In or Register
- Home
- Recent Transactions - Sales
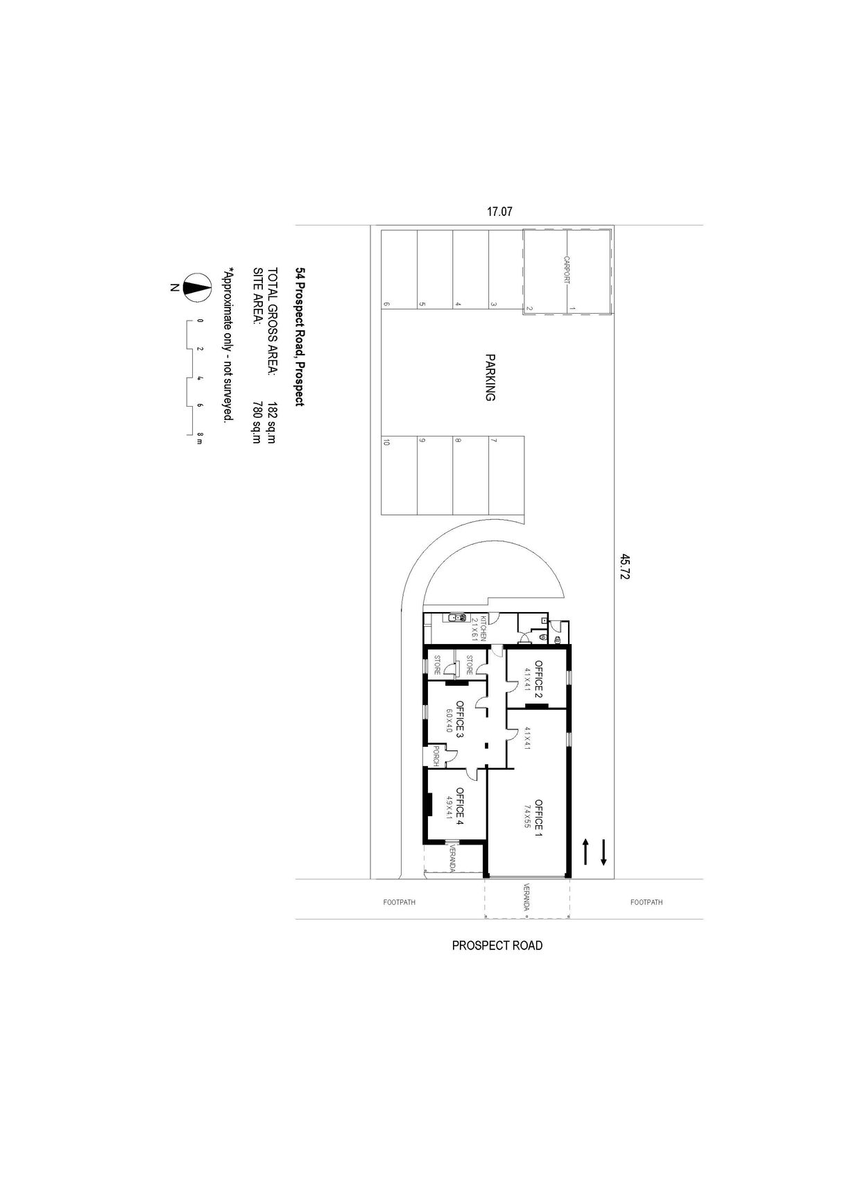
- 54 Prospect Road, PROSPECT, SA 5082
54 Prospect Road, Prospect, SA 5082
Floor Area:
182sqm
Land Area:
764sqm
Sold
IMPRESSIVE CHARACTER OFFICES 182m2*- POTENTIAL DEVELEOPMENT UPSIDE (STCC) - FLEXIBLE ZONING
Expression of Interest Closing 4pm Monday 29th April 2024 (USB)
Raine and Horne Commercial SA are delighted to present 54 Prospect Road Prospect to the market for sale.
Located in a premier location in Adelaide's inner north, meters from the parklands on a prime allotment of approx. 764m2* this property offers exceptional accommodation, impressive character, ample parking and beautiful presentation.
The property will be offered by vacant possession at settlement and is an excellent opportunity to secure prime real estate in a tightly held precinct with the following key features:
• Open reception
• Expansive open plan office - perfect for workstations
• Good fitout and amenities
• Mixture of open and partitioned offices and cellar
• Suitable for office, medical, hospitality (stcc)
• Ducted Reverse Cycle AC
• Security System
• Ample car parking
• Exposure to over 17000 vehicles daily**
• Urban Corridor (Living) Zone
The property is perfectly located in Adelaide's inner northen suburbs and is circa 4 kms to GPO.
* All areas/dimensions approximate
** SA Govt Transport Volume Survey

David Ente
Sales and Lease

Daniel Romeo
Sales and Leasing Consultant
Got a property to sell? Contact us for a free Request Appraisal
Property Info:
- Property ID: L27125743
- Property Type:Offices
- Building / Floor Area:182 sqm
- Land Area:764 sqm
Need help with your finance?
Our Broker is always on your side, and we are proud to be helping Australians obtain finance that best suits their circumstances and allows them to realise their property dreams. Your broker will work on your behalf, not the banks, to ensure that you get the most competitive rate within a product best suited to your needs and we do it fast and for free.

Sharon Burton
Mortgage Broker
Provided By

Recently Listed
Recently Sold

