Port Macquarie
- For Sale
- For Lease
- Recent Transactions
- About Us
- Sign In or Register
- Home
- Recent Transactions - Leased
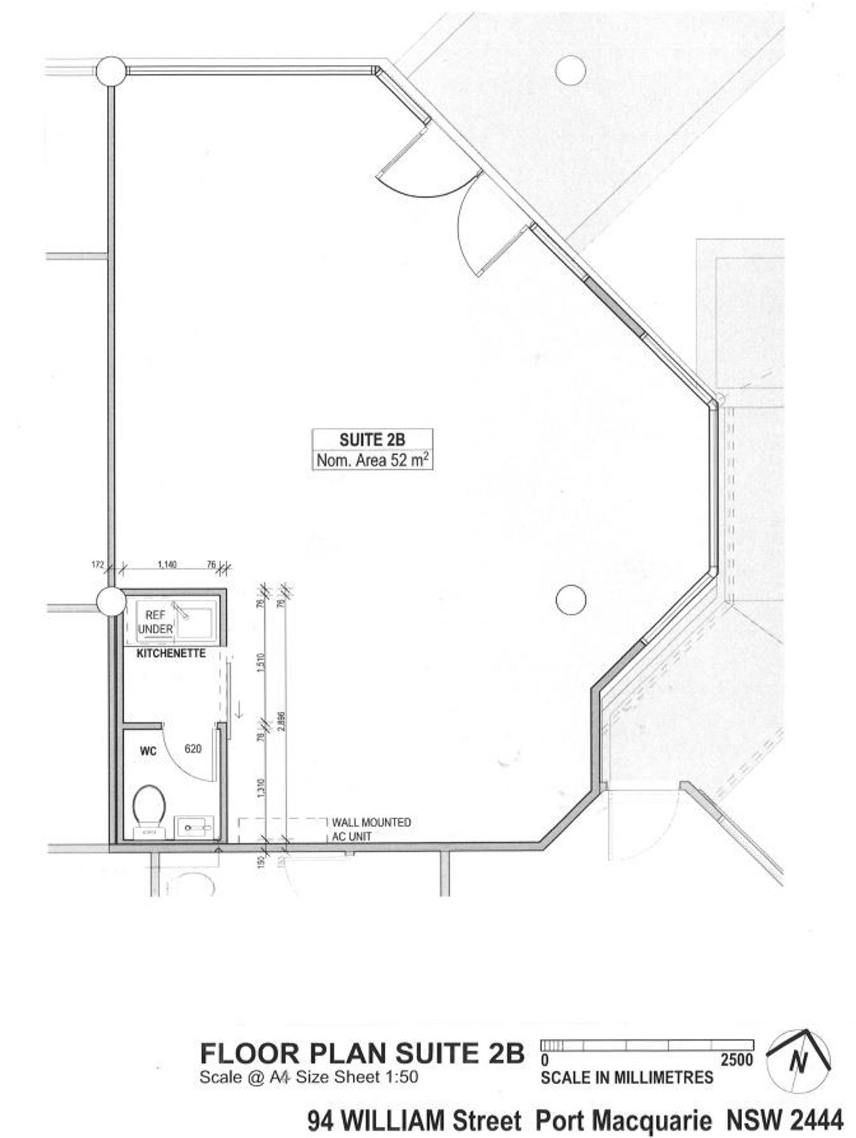
- Suite 2B/94 William Street, PORT MACQUARIE, NSW 2444
Suite 2B/94 William Street, Port Macquarie, NSW 2444
Floor Area:
52sqm
Land Area:
52sqm
Leased
$425.00 Per Week, Plus GST
Fringe CBD Office Space / Professional Premises
* Office area of 52 sqm approx
* Modern building within walking distance to centre of the CBD
* High profile corner location
* Excellent natural light
* Internal amenities includes kitchenette and W/C facilities
* Air conditioned & LED lighting
* On-site car parking spaces
* Suitable for many office, professional uses and Allied Health
Call Graeme Garrett 0417 243 727
Raine & Horne Port Macquarie
Shop 1, 136 William Street, Port Macquarie NSW 2444
T : 02 6584 0544

Graeme Garrett
Sales and Leasing Agent - Commercial

Coralie Cooper
Commercial Sales & Leasing Agent
Got a property to sell? Contact us for a free Request Appraisal
Property Info:
- Property ID: L35784463
- Property Type:Offices
- Building / Floor Area:52 sqm
- Land Area:52 sqm
Recently Listed
Recently Leased