Port Macquarie
- For Sale
- For Lease
- Recent Transactions
- About Us
- Sign In or Register
381 John Oxley Drive, Thrumster, NSW 2444
For Sale
$2.66 Million Ex GST
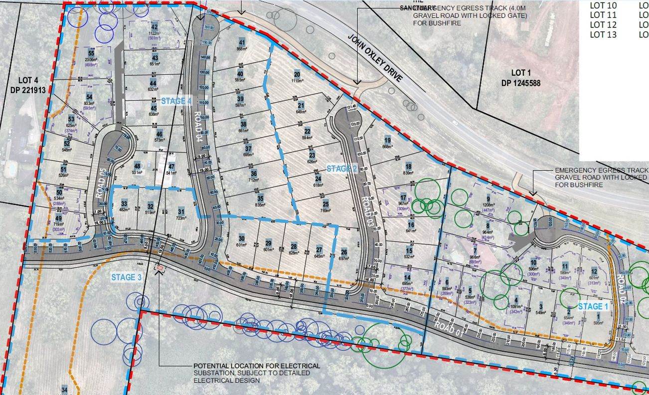
Large rural site with residential Subdivision approval
* The property benefits from a current development approval for a 55 lot residential subdivision over 4 stages (when combined with 393-409 John Oxley Drive)
* The DA lot sizes range from 482 sqm to a one off larger site of18,227 sqm - the aggregate size is - 650 sqm approx
* A rapidly expanding residential subdivision area - ready for development
* Situated along the sought after Mid North Coast Port Macquarie
* 381 John Oxley Drive offers a land area of 20,364 sqm approx
* Surrounded by rapidly expanding residential subdivision and commercial precincts including chemist, supermarket, gym, medical, cafes, plus major school close by ( St Joseph's Regional College within 1km), 24 hr highway service centre and fast food around the corner and under 10kms from the CBD of Port Macquarie - this opportunity ticks many boxes to ensure success
* ox.
* Buyers may consider an amended DA to resize the lots and improve site yield - create more lots to meet the affordable housing pressures (STCA) and increased financial returns
* For particulars of contract, DA approval plans and approval condition's, or inspections, call the listing agents.
* Raine & Horne - Luke Horton 0417 406 414
"Quayside Building" 136 William Street Port Macquarie
Ph 02 6584 0544

Luke Horton
Business Owner - Sales, Leasing & Management
Got a property to sell? Contact us for a free Request Appraisal
Property Info:
- Property ID: L37781578
- Property Type:Land/Development
Recently Listed
Recently Sold
