Hobart
- For Sale
- For Lease
- Recent Transactions
- About Us
- Sign In or Register
- Home
- Recent Transactions - Sales
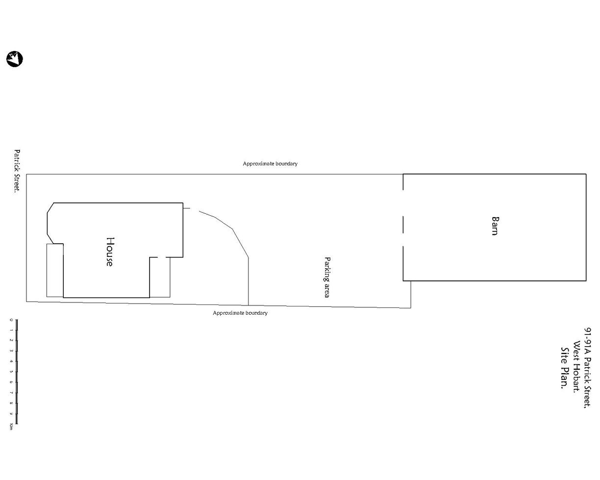
- 91-91A Patrick Street, West Hobart, TAS 7000
91-91A Patrick Street, West Hobart, TAS 7000
Floor Area:
360sqm
Land Area:
623sqm
Sold
CHARACTER CITY FRINGE HOME, CAR PARKING & DREAM REAR BARN
Not too many opportunities like this ever hit the market.
Raine & Horne Commercial are delighted to present 91-91A Patrick Street, West Hobart for sale by Expressions of Interest closing 3 pm Monday 30th March 2026.
A truly unique property on Hobart's city fringe, within easy walking distance of the CBD, features include;
• A picture perfect two-storey weatherboard home (151m2 approx) at the front, currently two bedrooms but easily converted to three (STCA). Recently refreshed (a new coat of paint internally) and offering a blank canvas to its next custodian.
• Central bitumen sealed parking (5-6 parks) providing huge amenity, and flexibility for development options.
• Dream heritage barn (209m2 approx) at the rear guaranteed to whet the appetite of those seeking a stylish studio, artistic workshop, or warehouse style residential conversion, all subject to Council approval.
• The barn, previously home to the much loved "The Patch Works", a boutique business selling quilt fabrics and offering sewing classes, features polished concrete flooring with underfloor heating, exceptional natural light, and large exposed timber trusses combining beautifully to create a space that is warm, creative and inviting. A toilet and kitchenette are located at the rear.
• Zoned "Inner Residential" under the Tasmanian Planning Scheme - Hobart
Offered for the first time in some 42 years, this is a property that will have strong appeal to residential and commercial buyers with its premium location, central parking, development options and warehouse style ambience of the rear barn.
In short - a MUST to inspect.
Note: The Vendor reserves the right to enter into an agreement, accept an offer, or otherwise deal with the property at any time prior to the Expressions of Interest closing deadline.

Leslie Simpson
Commercial Sales & Leasing
Got a property to sell? Contact us for a free Request Appraisal
Property Info:
- Property ID: L39859488
- Property Type:Retail
- Building / Floor Area:360 sqm
- Land Area:623 sqm
- Car Spaces:6
Recently Listed
Recently Sold

